A combination of storytelling thru design, comics and myths.

This space is designed to bring a legend to life. Mulan, both a comic and a myth, becomes reality when used as the concept for an interior. Take a walk through the space and experience the tale of Mulan.

- Han & Lotus Comics -

Han and Lotus Comics Interior Concept

This project investigates how a physical comic book store can distinguish itself in a market where online competition is strong and local competition is limited. The key opportunity lies in experience and originality. Located in a prominent shopping street in Boxtel, the store consists of one large open space, making a flexible and modular interior layout the most suitable solution.

The design prioritizes safety, accessibility, and hospitality. Clear escape routes, fire safety elements, and emergency exits ensure a safe environment, while wide aisles and wheelchair-accessible counters and tables make the store welcoming to all visitors. A coffee corner and an activities zone enhance the sense of hospitality and encourage longer visits and social interaction.

The Mulan-inspired experience forms the unifying concept of the store. Through warm lighting, Chinese-inspired colors and materials, carefully selected music, and subtle scents, visitors are immersed in a narrative environment. The store becomes more than a place to purchase comic books, it invites customers to step into a story and experience a chapter of Mulan’s journey.

The name “Han and Lotus Comics” reinforces this identity. It references the Han people, of which Mulan was part, and the lotus flower, symbolizing resilience and calm, qualities that Mulan embodies. Together, they form a distinctive brand and a multi-sensory retail experience where storytelling, culture, and commerce come together.

- QR-Code Panorama photo’s -

To enhance the experience of the interior, you can scan the QR codes, which will redirect you to Chaos.com. There, you can explore high-quality rendered images that give the impression of being inside the space.

Comic store interior

Click or Scan

A woman sitting on a stack of books, holding a framed photo, with various abstract shapes and colors in the background, including a red fan and a dark hanging lamp.

- Concept map -

Calming, harmony, balance, character, personality

A floor plan of an office or communal workspace with various areas including a reception desk, several workstations with computers, a conference table, lounge chairs, small round tables with seating, a kitchenette, and outdoor seating with plants and sculptures.

Floorplan

Design inspiration

A black and white Yin-Yang symbol, floating in the air.

Ying & Yang

Yin and Yang is a symbol we are all familiar with: two opposing forces that complement each other and together form a harmonious whole. It represents a core principle of Chinese philosophy, emphasizing balance and peace.

To incorporate this meaningful symbol into the spatial concept, I used Yin and Yang as the foundation for the layout of the space. As shown in the floor plan above, I integrated two columns that represent the two circles of Yin and Yang. Between these columns, I placed an organically shaped bookcase, reflecting the flowing line that connects the two forces. In this way, not only the materials and colors shape the spatial concept, but the form itself gives the space its authentic Chinese roots.

Inspiration to design:
The entrance of the Palace Museum in Beijing, China, with traditional Chinese architecture, large wooden doors, Chinese characters sign, and guards.

Chinese color theory

China has a rich history of traditions that are closely connected to color theory. Three important philosophical systems related to color are Wuxing, Feng Shui, and Yin and Yang. While each system carries its own meanings, they share the belief that philosophy gives meaning not only to life, but also to space. By using these systems as inspiration for the color palette, Chinese culture becomes a key influence within the design.

Because the comic store is connected to the story of Mulan, I explored her narrative more deeply. Mulan shows that strength is not fixed, but changes over time. When her father was no longer physically able to join the military, Mulan stepped in and took on that role, showing courage and responsibility.

When looking at the color theories mentioned above, red, warm tones, and green strongly relate to Mulan’s story. These colors represent action, warmth and bravery, as well as health and nature, reinforcing both the narrative and the cultural philosophy within the space.

Inspiration to design:
Colorful traditional Chinese temple roof with intricate designs and decorations against clear blue sky.
Inspiration to design:

Han & Lotus

Not only the interior, but also the name of the comic store was an aspect of this project that needed careful thought. This was my thought process behind it:

The legend of Mulan is set during the Northern Wei dynasty. In the story, she becomes part of Han culture, taking her roots and philosophy from the Han people.

The lotus stands for purity and moral integrity. The flower grows in mud but always rises to bloom above the surface—just like Mulan. She isn’t from a wealthy family, but there is one thing her family is rich in: love. This is shown in her courage to join the military, not just for her father, but also for the honor of her family.

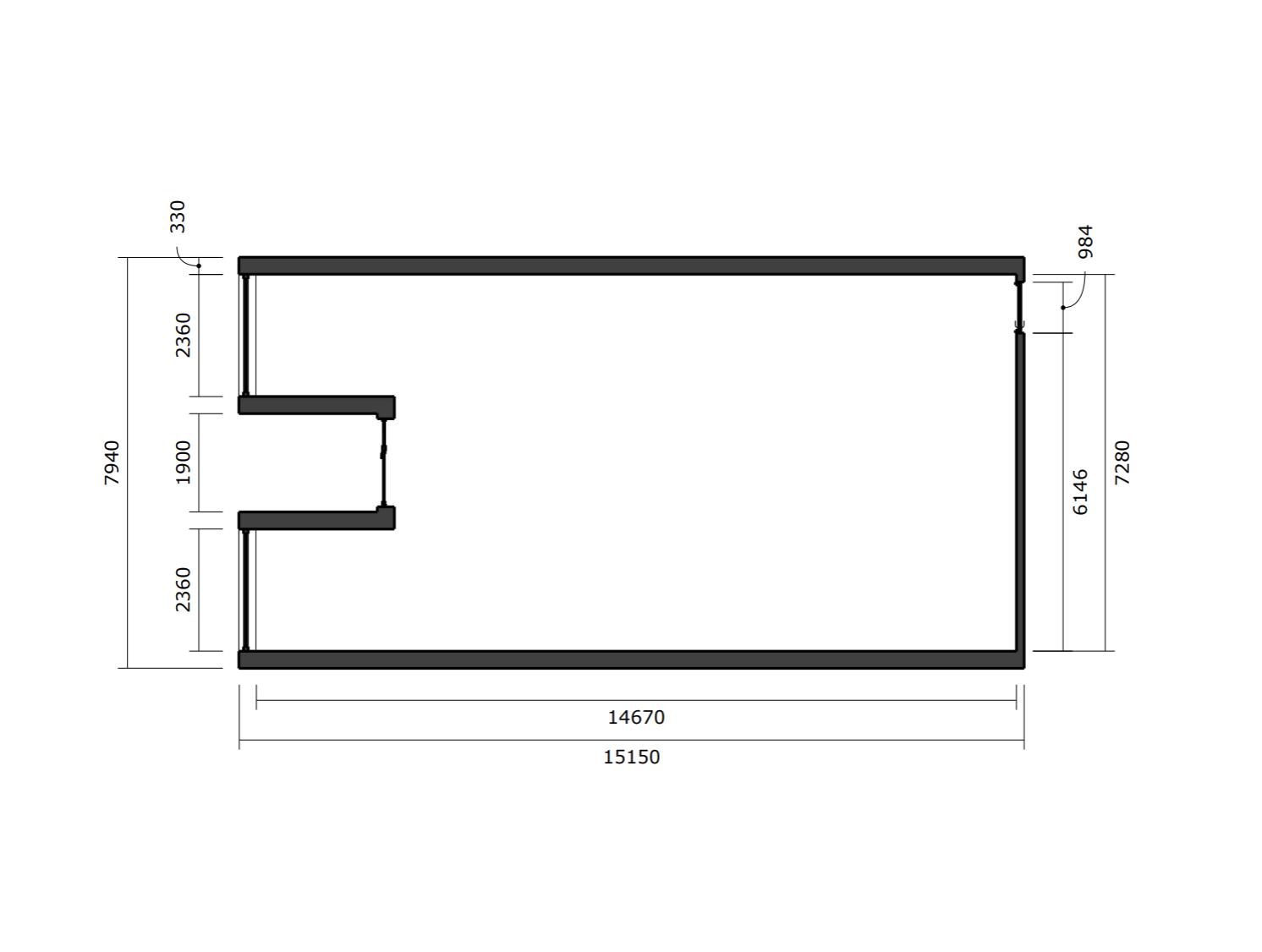
Space analysis

Floor plan of a rectangular structure with three small adjacent sections on the left side, containing specific measurements in millimeters, with longer exterior dimensions of approximately 14.7 meters length and 7.3 meters width.
Measurements of the comic store
A technical diagram of a rectangular room with measurements and markings, including an inset compass showing directions.
Daylight analysis.

Dark coloring = winter sun. Light coloring = summer sun.

Cross-section of a display shelf with three levels, supported by metal brackets, against a white background.
Design line analysis

Orange = Windows & doors. Green = Walls

Layout sketches

Color-coded floor plan of a rectangular space with multiple rooms, including two pink rooms, a green section with a red rectangle, a yellow area, and a small blue and gray section.

Legend: Coffee Corner - Comics - Information, packing, and checkout counter - Shopping window - Emergency exit - Activity

Hand-drawn diagram of a room layout with labeled features, including bookshelves, a bed with a built-in display, a pillow with a headboard, and a corner with a coffee table in front of a wall.
Floor plan sketch of a small apartment with pink, yellow, orange, green, and blue rooms, including a bathroom and entrance door
Hand-drawn layout of an office space with labeled areas including office corner, workshop, plant corner, wavy bookshelf, book display, and a central desk with plants.
Color-coded floor plan of a rectangular room with two doors, showing different sections in pink, orange, yellow, red, green, and blue.
Hand-drawn floor plan of a bookstore with different sections labeled in multiple colors, including book shelves, a seating area, a coffee bar, and small illustrations of furniture outside the plan.

Definitive layout & additional information

Floor plan of a large room, possibly a childcare or play area, with various play equipment, seating, and decorative elements, including desks, tables, benches, and small climbing structures.
Definitive layout Han & Lotus
Floor plan of an indoor space with various seating areas, tables, a reception desk, and decorative elements.
Routing of Han & Lotus

Armed Angels

TooGoodToGo

Japanese Retreat