The japanese culture reflected in a warm and serene space

For this projected, I was asked to create a vacation home in Japan, that could be rented by tourists. To fully embrace Japanese culture, living in a japanese inspired retreat is the perfect way to experience Japan.

- Japanese-Inspired Holiday Home Concept -

This project draws inspiration from Japanese culture and values, with a strong focus on respect, calm, and balance. Everyday rituals, such as removing shoes before entering a space, reflect a deep respect for place and people, which is translated into a mindful and serene interior design. The use of minimal forms and warm, natural colors creates a calm environment where visitors can slow down and relax.

A key inspiration is the way tradition and modern life coexist in Japan. Historic temples and natural landscapes are seamlessly integrated into contemporary cities, creating a unique balance between nature and urban life. This contrast, between calm and activity, became an important theme within the holiday home design, guiding spatial transitions and atmosphere.

The concept also embraces the Japanese view on imperfection and aging as something valuable rather than flawed. Inspired by the philosophy behind Kintsugi, the holiday home celebrates material honesty and subtle imperfections. The result is a peaceful retreat that reflects Japanese cultural principles while offering a timeless and thoughtful holiday experience.

- QR-Code Panorama photo’s -

To enhance the experience of the interior, you can scan the QR codes, which will redirect you to Chaos.com. There, you can explore high-quality rendered images that give the impression of being inside the space.

Living room, dining room and kitchen

Bedroom/view on the second floor

Click or Scan

Collage of Asian-inspired elements including lanterns, parasols, rice paper, wooden scrolls, garden scenes, and sand raked into patterns.

- Concept map -

Calming, harmony, balance, character, personality

Top-down view of a modern apartment layout with a bedroom, living area, dining space, and enclosed bedrooms.

Floorplan

Design inspiration

A ceramic bowl with a speckled glaze on a wooden block, with a branch of blooming flowers extending from the bowl, on a wooden surface with sunlight and shadows in the background.

Kintsugi & Wabi-Sabi

Kintsugi and Wabi-Sabi, both well-known approaches to the acceptance of coming and going. This design approach highlights the lived-in aspect of an object or material by accentuating it with gold lines. For this reason, I chose to use wood, stone, and linen, all materials that are natural. These materials also all have one aspect in common: they leave and show their marks. They capture the essence of life in them, like Kintsugi or Wabi-Sabi would, reinterpreting Kintsugi by celebrating imperfection through the natural aging of materials rather than repair.

Inspiration to design:

Two women in traditional Japanese kimonos sitting against a black door with ornate gold door handles and decorative gold accents.

Wa

Inspiration to design:

Wa is a Japanese cultural principle emphasizing harmony, understanding, and connection with the people around you. In Japan, hospitality is a core norm, and not just sharing space, but caring for and being with others is valued. To reflect this, I incorporated larger seating areas and a net above the dining and living space, allowing people to gather, relax, and interact. Placed at the largest windows, the net also maximizes the use of space while creating a playful, communal area in the Japanese-inspired retreat.

The image shows the large carved face of a seated Buddha statue viewed from below, framed by an open circular stone structure with a blue sky in the background.

Japandi & Tadao Ando

Inspiration to design:

Japandi is a well-recognized interior design concept that combines warm materials, colors, and inviting shapes to create cozy, welcoming spaces. For this reason, I chose warm wood that harmonizes with the beige limewash walls and rattan cabinets.

Inspired by Tadao Ando, who emphasizes space through the interplay of light, concrete, and minimalism, I applied his principles by selecting a limewash finish for both walls and floors, allowing the space to shine without unnecessary ornamentation. I also prioritized natural light, situating communal areas—the net, living, and dining spaces—near the largest windows to foster interaction and a sense of openness.

Space analysis

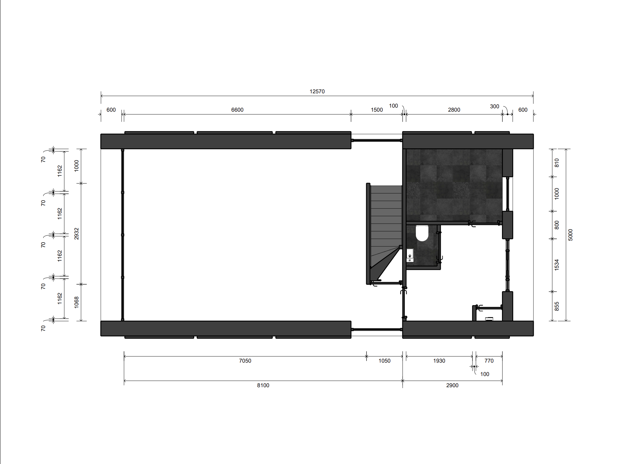
Architectural floor plan of a residential house with measurements and room layouts, including stairs, bathroom, and living areas.
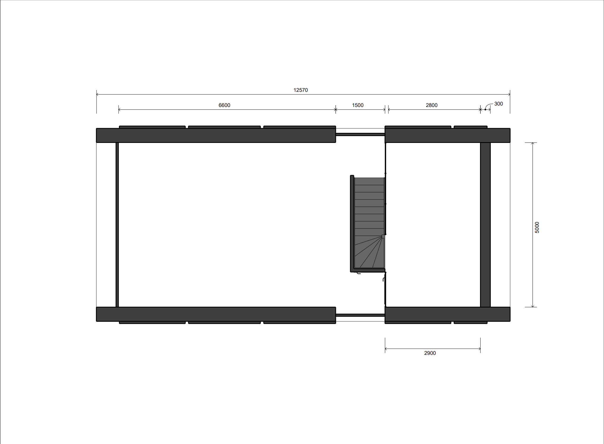
Top view of a building floor plan with dimensions, including a staircase in the center and walls with measurements marked in millimeters.

Measurements of the Japanese retreat: First floor

Measurements of the Japanese retreat: Ground floor

Color-coded architectural floor plan with stairs, rooms, and a north arrow.
Daylight analysis.

Dark coloring = winter sun. Light coloring = summer sun.

Floor plan of a building including stairs, bathroom, and multiple rooms with structural lines.
Design line analysis

Orange = Windows & doors. Purple = Walls

Layout sketches

A color-coded map showing different rooms labeled with color patches: orange for Genkan Entry, teal for Kitchen, orange for Dining room, green for Lounge, red for Bedroom, purple for Storage, dark red for Bathroom, blue for Restroom, and green for Utilities cabinet.
Floor plan of a small apartment with a bedroom, bathroom, kitchen, dining area, and living room.
Color-coded floor plan of an apartment with green, orange, blue, purple, red, and yellow rooms.
Color-coded floor plan of a building with yellow, green, blue, purple, and red sections.
Floor plan sketch of a small apartment with a stairway, bathroom, a bedroom with two beds, and an open space.
Floor plan of a small apartment with an open living room, kitchen, dining area, and separate bedroom and bathroom.
Color-coded floor plan of a building with green, yellow, blue, purple, red, and yellow rooms.
Floor plan showing a rectangular room with a staircase at the top right corner and a small wooden platform at the bottom right.
Floor plan layout of a house with a living area, dining table, kitchen, bathroom, and bedroom.

Definitive layout & additional information

Floor plan of a house showing a bathroom with a bathtub, a staircase, a kitchen with a stove and sink, and a living area with furniture.
Line drawing of a cross-section interior of a building with multiple floors, stairs, and various furnishings like lamps, furniture, and structural elements.
Floor plan of a house with arrows indicating various rooms and features, including living room, kitchen, stairs, bathroom, and bedroom.
Collection of hand-drawn sketches of various lighting fixtures and lamps.
Floor plan of a house with rooms labeled and highlighted areas marked with yellow dots.
A black-and-white hand-drawn floor plan of a small apartment with an open living space and a bedroom separated by a wall. The entrance is at the bottom center, with stairs leading up to the sleeping area on the right, which includes a bed, window, and additional furniture.
Line drawing of an interior floor plan, including a bathroom, stairs, and a large open space with a seating area and plants.
Black and white sketch of a house cross-section showing rooms, beams, and a unique grid-patterned door or window.
Line drawing of a house cross-section showing interior details, including furniture, lighting, a door marked 'smeg', stairs, a tree outside, and interior furnishings.
Hand-drawn floor plan of a room with a staircase, bed, and lighting fixtures, using black and yellow ink.

Armed Angels

TooGoodToGo

Han & Lotus