Minimalism with a touch of denim boldism, made for Armed Angels.

A project perfectly curated on the brand identity of Armed Angels. By using eco-friendly materials and materials such as denim, Armed angels as a concept gets its materials, shapes and colors.

- THE CONSCIOUS ATELIER -

- The Conscious Atelier Interior Concept -

This project explores how the core identity of ARMEDANGELS, calm, honesty, sustainability, and timeless design, can be translated into a contemporary office interior. Based on in-depth research, the concept focuses on creating a serene and balanced working environment that reflects the brand’s transparent and responsible approach to fashion.

The interior is built around a soft base of beige tones and natural materials, reinforcing a sense of calm and authenticity. Clean, architectural lines are combined with subtle curves, creating a balance between professionalism and approachability. Carefully placed accents in indigo and green subtly reference nature, circularity, and ARMEDANGELS’ strong commitment to sustainability.

Furniture selections from Ahrend and Havic complement the concept both functionally and aesthetically. Ahrend contributes modular, ergonomic furniture designed with circular principles in mind, while Havic adds warmth and atmosphere through versatile and expressive pieces. Together, they form a cohesive interior where functionality and design enhance one another.

The result is a minimalist and refined office environment that not only supports everyday work, but also strengthens the ARMEDANGELS brand story. Through thoughtful material choices, restrained color use, and expressive detailing, the interior reflects the brand’s mission:

“We are not here to make fashion, we are here to make change.”

- QR-Code Panorama photo’s -

To enhance the experience of the interior, you can scan the QR codes, which will redirect you to Chaos.com. There, you can explore high-quality rendered images that give the impression of being inside the space.

Showroom panorama

Lounge / Flexible workspaces

Meeting room panorama

Click or Scan

A collage of four minimalist interior design images. The top left shows a piece of sand with ripples and a blue cloth with a paperclip on it. The bottom left features ceiling-mounted white spotlights and a cream curtain. The middle image depicts a bright conference room with large arched window, white curtains, a long white table, and white chairs. The right image displays a light wooden cabinet wall with open shelves and a reading nook in a room with wooden flooring.
A detailed floor plan of a modern office space, including areas with workstations, meeting rooms, lounge areas with sofas, a small kitchen, and multiple work desks with chairs and computers.

- Concept map -

Calm, natural, warm, simple, mindful, harmonious

Floorplan

Design inspiration

An aerial view of a deep, lush green crater lake surrounded by dense forested cliffs.

‘We are here to make change’

Armed Angels lives by the quote, “We are not here to make fashion, we are here to make change.” With this philosophy in mind, I approached every design decision with the intention of redefining traditional office spaces. Offices are often associated with stress, long working hours, and uninspiring environments, which can hinder creativity and well-being.

As Armed Angels is a fashion brand, it is essential that employees are able to focus on creativity and collaborate effectively with one another. Therefore, I incorporated flexible workspaces within a serene environment, using soft colors and natural materials that are gentle on the eyes and support calmness, focus, and collaboration.

Inspiration to design:
People shopping for clothes inside a retail store with clothing racks, mannequins, and a display table with flowers.

Acoustics

Inspiration to design:

Acoustics are an important aspect of a functional workspace. Too much noise reduces concentration, while complete silence can make working feel dull. To emphasize the value of being present in the office and to support collaboration, I aimed to create an environment that feels energetic yet calm enough for focused work.

By using soundproof glass and wall paneling, noise is contained within the spaces where it is intended. To reduce echo caused by harder materials, I also incorporated curtains as a modular way to divide spaces while maintaining pleasant acoustics within each area.

Strategic planning was applied to the spatial layout as well. By organizing spaces from most noisy to least noisy, the design supports both functionality and atmosphere. The sequence moves from a lively showroom to a quieter lounge and office area, and finally to a fully soundproof conference room.

Black background with white dotted abstract pattern resembling a brain

Distribution of people

Inspiration to design:

Because the office is connected to a showroom, controlling the flow of people becomes a way to influence how visitors move through the space. This is a significant advantage for the designer, as it allows attention to be directed toward specific details. I chose to include three entrances so visitors can easily access the room and exit when needed. I also positioned the lounge area as close to the showroom as possible, allowing staff to bring potential buyers there for more in-depth discussions about purchasing inventory.

I also divided the showroom into three distinct zones. By giving each zone its own entrance, visitors are more likely to enter the area closest to them. This helps distribute foot traffic more evenly and prevents overcrowding, as visitors naturally choose alternative entrances when one area becomes busy.

Space analysis

Floor plan of a room layout with dimensions in centimeters.
Measurements of the office/showroom
Light analyses
Daylight analysis.

Dark coloring = winter sun. Light coloring = summer sun.

Architectural floor plan of a building with gridlines and walls.
Design line analysis

Orange = Windows & doors. Purple = Walls

Layout sketches

Color-coded floor plan of a building with labels for storage, flex spaces, meeting room, showroom, entry, reception area, and lounge.
Floor plan layout of a house with rooms, furniture, and appliances.
A color-coded floor plan of a building with areas marked for storage, flex spaces, meeting room, showroom, entry, reception area, and lounge. The storage is blue, flex spaces are red, meeting room is light blue, showroom is yellow, entry is orange, reception area is pink, and lounge is light grey. The plan includes a legend and the title 'San Antonio Animal Angels, Scale 1:100, A4'.
Floor plan of an apartment including a living room, dining area, kitchen, bedroom, and bathroom.
Floor plan of a building with areas marked as Storage in blue, Flex spaces in pink, Meeting room in blue, Showroom in yellow, Entry in peach, Reception area in pink, and Lounge in green.
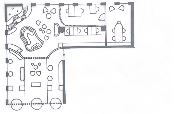
A detailed floor plan of an indoor space including a lounge area, reception, offices, multiple workstations, and a restroom.

Definitive layout & additional information

Floor plan of an office space with a reception area, multiple conference rooms, open workspace with desks, and a lounge area with seating.
Definitive layout Showroom & Office Armed Angels
Floor plan of an indoor play area with a slide, climbing structures, seating areas, and a large table with chairs.
Routing of Showoorm & Office Armed Angels
Office floor plan with different lighting zones including ambient, accent, task, and general lighting marked with colors green, red, blue, and yellow respectively.
Light distribution of Showoorm & Office Armed Angels

TooGoodToGo

Japanese Retreat

Han & Lotus